长输热纳米管托
江苏华电
长输热纳米滑动管托
一、江苏华电管道设备有限公司长输热纳米节能管托的特性
1.导热系数低,断热效果好、比重轻、抗浸蚀、稳定性好;
2.超低温(-163℃以下)高温下,体积安定;
3.抗压性及抗曲性高强;
4.高压注模成型,有各种厚度及层数,配合各种温度要求使用;
5.管托各组件,在制造厂组装成坚固的单一结构体,使用寿命长;
6.现场安装迅速、简便又安全,无须改动管线;
7.规格化制造、质量可靠、供货迅速;
8.多种规格设计,供各层次技术及经济需求的选择。
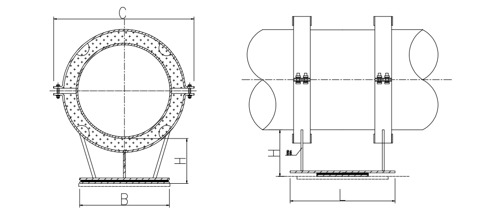
二、HDFH-80-1000长输热纳米滑动管托结构图
三、长输热纳米滑动管托参数表
四、隔热环要求
1.材质:纳米隔热瓦块+纳米气凝胶
2.隔热瓦块的耐压强度≥15.0Mpa;抗折强度≥4.5Mpa;
3.当温度T=250℃时,导热系数≤0.13W/m.k;
4.在管托底板滑动层为不锈钢和聚四氟乙烯,摩擦系数≤0.1。
长输热纳米滑动管托
一、江苏华电管道设备有限公司长输热纳米节能管托的特性
1.导热系数低,断热效果好、比重轻、抗浸蚀、稳定性好;
2.超低温(-163℃以下)高温下,体积安定;
3.抗压性及抗曲性高强;
4.高压注模成型,有各种厚度及层数,配合各种温度要求使用;
5.管托各组件,在制造厂组装成坚固的单一结构体,使用寿命长;
6.现场安装迅速、简便又安全,无须改动管线;
7.规格化制造、质量可靠、供货迅速;
8.多种规格设计,供各层次技术及经济需求的选择。
二、HDFH-80-1000长输热纳米滑动管托结构图
三、长输热纳米滑动管托参数表
四、隔热环要求
1.材质:纳米隔热瓦块+纳米气凝胶
2.隔热瓦块的耐压强度≥15.0Mpa;抗折强度≥4.5Mpa;
3.当温度T=250℃时,导热系数≤0.13W/m.k;
4.在管托底板滑动层为不锈钢和聚四氟乙烯,摩擦系数≤0.1。
长输热钠米节能管托的说明及规格选用
长输热钠米节能管托是我公司自行研发的新型高强模块复合管托,管托隔热层内部采用多种特殊材料复合而成。镶嵌了复合型隔热块的节能管托采用新型复合聚四氟乙烯滑片和镜面不锈钢材料的摩擦副,使底座摩擦系数大大降低,确保管线的安全运行。其结构内部的主要材料硬度高、传热系数小,使管托即可承载重量又可将管道向钢支架取的传热渠道隔断。
目前,我公司生产复合型管托工艺领先,使用了先进的机械设备和模具来生产的,提高了这种管托的质量、性能和精度,达到了国家的质量标准范围,满足客户在选择过程中要进行检测一些项目的要求。长输热钠米节能管托可根据客户要求制作成不同的耐热等级、造型和规格的产品,如隔热导向型、固定型、滑动型。
长输热钠米节能管托的研发,解决了埋地蒸汽管道的隔热材料易老化的大难题,有效地隔开高温区的热,使蒸汽管道的热为能不能直接支座上,防止了“热桥”的产生,使埋地管外钢套防腐层的温度始终处于安全使用范围以内。延长了防腐层的使用寿命,使蒸汽管道的热能损失减少,保证了管道安全运行。对于管网使用单位在节能降耗方面有较大的效益。
长输热钠米节能管托的说明及规格选用
长输热钠米节能管托是我公司自行研发的新型高强模块复合管托,管托隔热层内部采用多种特殊材料复合而成。镶嵌了复合型隔热块的节能管托采用新型复合聚四氟乙烯滑片和镜面不锈钢材料的摩擦副,使底座摩擦系数大大降低,确保管线的安全运行。其结构内部的主要材料硬度高、传热系数小,使管托即可承载重量又可将管道向钢支架取的传热渠道隔断。
目前,我公司生产复合型管托工艺领先,使用了先进的机械设备和模具来生产的,提高了这种管托的质量、性能和精度,达到了国家的质量标准范围,满足客户在选择过程中要进行检测一些项目的要求。长输热钠米节能管托可根据客户要求制作成不同的耐热等级、造型和规格的产品,如隔热导向型、固定型、滑动型。
长输热钠米节能管托的研发,解决了埋地蒸汽管道的隔热材料易老化的大难题,有效地隔开高温区的热,使蒸汽管道的热为能不能直接支座上,防止了“热桥”的产生,使埋地管外钢套防腐层的温度始终处于安全使用范围以内。延长了防腐层的使用寿命,使蒸汽管道的热能损失减少,保证了管道安全运行。对于管网使用单位在节能降耗方面有较大的效益。