一体化旋转补偿器、纳米隔热管托生产厂家
江苏华电管道设备有限公司
当前所在位置: 首页 » 产品展示 » 隔热管托 » 节能型滚动管托 » 节能型滚动管托

loading

分享到:

节能型滚动管托

江苏华电管道设备有限公司专业生产销售节能型滚动管托, 节能型滚动管托, 隔热管托, 纳米隔热管托。
状态:
数量:
  • 隔热管托

  • 江苏华电

节能型滚动管托


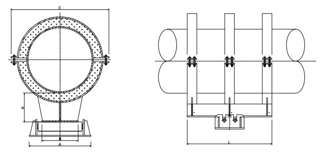
一、产品结构图

节能型滚动管托3


二、管托由供货商成套提供,管托结构尺寸如下

节能型滚动管托


三、产品说明

1.管托型号代表方式为HDGDN(通径)-H(管托高度/滚动支架高度)-L(长度),如HDGDN500-H200/120-L400;

2.隔热瓦块抗压强度≥15.0Mpa,抗折强度≥4.5Mpa;

3.软质隔热层自然厚度30~40mm,压实为10~20mm;

4.温度在350℃时,导热系数≤0.12W/m.K;

5.管托的高度和长度可根据设计文件需求制作;

6.滚动支架采用自润滑含油轴承,在运行当中不需要加油,终身无需维护;

7.本产品的摩擦系数≤0.1。



上一条: 
下一条: 

产品分类

联系我们

江苏华电管道设备有限公司
地址 江苏省泰州市姜堰区梁徐镇第三工业园区
邮件: jshd088@163.com
电话: +86 0523-88282088
手机: +86 13814483228
传真: +86 0523-88261066
Q Q:  597064362
首页

江苏华电管道设备有限公司

地址: 江苏省泰州市姜堰区梁徐镇第三工业园区
邮件: jshd899@163.com
电话: +86 0523-88282088    
手机: +86 13814483228  
版权所有  江苏华电管道设备有限公司-一体化旋转补偿器厂家